船用外螺紋空氣信號安全閥CB/3022-94
安全閥屬于自動閥類,主要用于鍋爐、壓力容器和管道上,控制壓力不超過規定值,對人身安全和設備運行起重要保護作用。注安全閥必須經過壓力試驗才能使用。
安全閥結構分類
按其整體結構及加載機構的不同可以分為重錘杠桿式、彈簧式和脈沖式三種。
1.重錘杠桿式安全閥 重錘杠桿式安全閥是利用重錘和杠桿來平衡作用在閥瓣上的力。根據杠桿原理,它可以使用質量較小的重錘通過杠桿的增大作用獲得較大的作用力,并通過移動重錘的位置(或變換重錘的質量)來調整安全閥的開啟壓力。 重錘杠桿式安全閥結構簡單,調整容易而又比較準確,所加的載荷不會因閥瓣的升高而有較大的增加,適用于溫度較高的場合,過去用得比較普遍,特別是用在鍋爐和溫度較高的壓力容器上。但重錘杠桿式安全閥結構比較笨重,加載機構容易振動,并常因振動而產生泄漏;其回座壓力較低,開啟后不易關閉及保持嚴密。
2.彈簧微啟式安全閥 彈簧微啟式安全閥是利用壓縮彈簧的力來平衡作用在閥瓣上的力。螺旋圈形彈簧的壓縮量可以通過轉動它 上面的調整螺母來調節,利用這種結構就可以根據需要校正安全閥的開啟(整定)壓力。彈簧微啟式安全閥結構輕便緊湊,靈敏度也比較高,安裝位置不受限制,而且因為對振動的敏感性小,所以可用于移動式的壓力容器上。這種安全閥的缺點是所加的載荷會隨著閥的開啟而發生變化,即隨著閥瓣的升高,彈簧的壓縮量增大,作用在閥瓣上的力也跟著增加。這對安全閥的迅速開啟是不利的。另外,閥上的彈簧會由于長期受高溫的影響而使彈力減小。用于溫度較高的容器上時,常常要考慮彈簧的隔熱或散熱問題,從而使結構變得復雜起來。
3.脈沖式安全閥 脈沖式安全閥由主閥和輔閥構成,通過輔閥的脈沖作用帶動主閥動作、其結構復雜,通常只適用于安全泄放量很大的鍋爐和壓力容器。 上述三種形式的安全閥中,用得比較普遍的是彈簧式安全閥。
安全閥常見故障
排放后閥瓣不回座:這主要是彈簧彎曲閥桿、閥瓣安裝位置不正或被卡住造成的。應重新裝配。
泄漏:在設備正常工作壓力下,閥瓣與閥座密封面之間發生超過允許程度的滲漏。其原因有:閥瓣與閥座密封面之間有臟物??墒褂锰嵘馐謱㈤y開啟幾次,把臟物沖去;密封面損傷。應根據損傷程度,采用研磨或車削后研磨的方法加以修復;閥桿彎曲、傾斜或杠桿與支點偏斜,使閥芯與閥瓣錯位。應重新裝配或更換;彈簧彈性降低或失去彈性。應采取更換彈簧、重新調整開啟壓力等措施。
[span]到規定壓力時不開啟:造成這種情況的原因是定壓不準。應重新調整彈簧的壓縮量或重錘的位置;閥瓣與閥座粘住。應定期對安全閥作手動放氣或放水試驗;杠桿式安全閥的杠桿被卡住或重錘被移動。應重新調整重錘位置并使杠桿運動自如。
[span] 排氣后壓力繼續上升:這主要是因為選用的安全閥排量小于設備的安全泄放量,應重新選用合適的安全閥;閥桿中線不正或彈簧生銹,使閥瓣不能開到應有的高度,應重新裝配閥桿或更換彈簧;排氣管截有不夠,應采取符合安全排放面積的排氣管。 閥瓣頻跳或振動:主要是由于彈簧剛度太大。應改用剛度適當的彈簧;調節圈調整不當,使回座壓力過高。應重新調整調節圈位置;排放管道阻力過大,造成過大的排放背壓。應減小排放管道阻力。
不到規定壓力開啟:主要是定壓不準;彈簧老化彈力下降。應適當旋緊調整螺桿或更換彈簧。
船用外螺紋空氣信號安全閥CB/3022-94實物圖

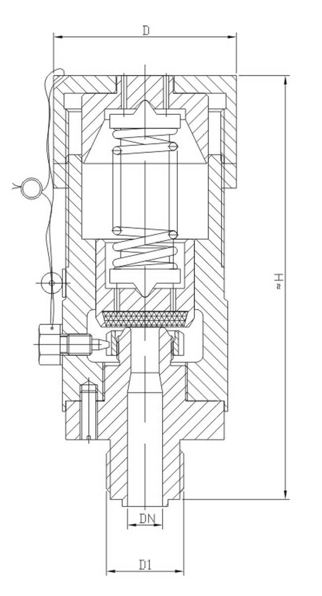
船用外螺紋空氣信號安全閥CB/3022-94結構圖與尺寸表



聲明:
本文中所有文字、數據、圖片均只適用于參考。需要查看更多的船用外螺紋空氣信號安全閥CB/3022-94 性能參數、結構尺寸參數、價格等詳情,或要求高質量印刷樣本,請聯系我們。
· 電話:18717746989
· 郵箱:sales@shczvalve.com
承質訂貨須知:
一、A:產品名稱、型號、公稱通徑B:介質及溫度、壓力范圍C:是否有附件、交貨期、特殊要求等以便我們的為您正確選型。
二、若已經由設計單位選定我公司的閥門型號,請您根據閥門參數直接與我們銷售中心訂購。
三、當您使用的場合非常重要或環境比較復雜時,請您提供設計圖紙和詳細參數,我們的工程師專家會為您審核與分析。我們可以為您提供解決方案,包括設計、定做、成套、運行、服務。我們一直致力于閥門行業領域,為您提供船用閥門知識、服務、技術顧問。
感謝您訪問我們的網站【m.ib-sh.com】,如有任何疑問,您可以致電給我們,我們一定會盡心盡力為您提供服務。本廠提供船用蝶閥、船用閘閥、船用止回閥、船用調節閥、船用減壓閥、船用呼吸閥、高速透氣閥、船用快關閥、船用自閉閥、船用旋塞閥、船用消防閥、船用通海閥、船用防浪閥、船用濾器、船用空氣帽、船用球閥、船用截止閥、船用截止止回閥、船用閥組、船用截止閥箱、船用針型閥、船用電磁閥、船用隔膜閥、船用壓力表閥等各類船用閥門,不銹鋼閥門。